Leave a Message

Thank you for your message. I will be in touch with you shortly.

Explore Properties

Property Description

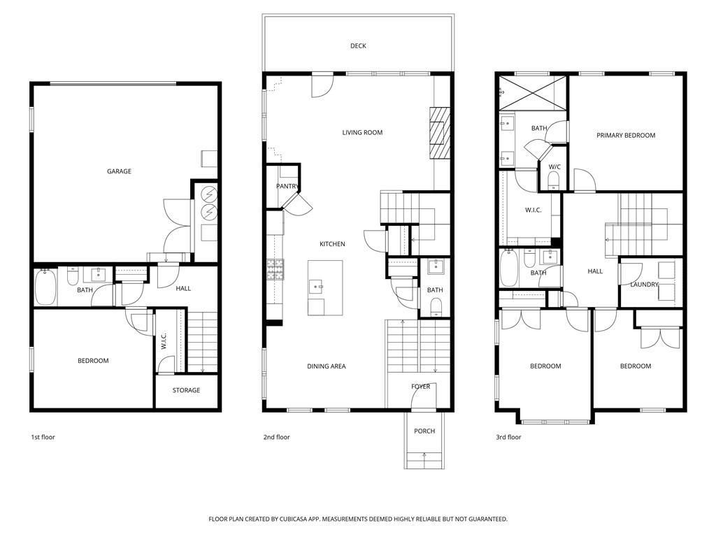
Welcome home, and welcome to the upgrade. Most townhomes in this price range ask you to compromise. This one does not. Tucked into The Park at Old Roswell, a boutique community of just 50 homes backing to a private wooded green space, 3001 Park Avenue is a rare end unit that has been thoughtfully transformed from a builder grade home into something that genuinely feels custom. From the moment you walk in, the difference is unmistakable. Every closet in the home has been outfitted with a professionally designed closet system, bringing real organization and intention to your daily routine. Custom shelving throughout the home adds both function and personality, with built-ins that look like they belong because they were designed to. This is a home where everything has a place. The lighting alone sets this home apart. A curated designer lighting package, representing thousands of dollars in selections, elevates every room, casting the kind of warm, layered ambiance that is impossible to replicate with a builder-grade fixture swap. Whether you are hosting a dinner party on the main level or winding down in the owner's suite, the atmosphere moves with you. And then there is the technology. Lutron Caseta smart switches are installed throughout, giving you effortless, app-controlled lighting from anywhere in the home or anywhere in the world. Pair that with UniFi wireless access points on every level, and you have enterprise-grade WiFi coverage that eliminates dead zones entirely. Working from home, streaming, video calls, it all just works, without compromise. The home itself spans three thoughtfully designed stories. The main level lives large and bright, with a chef's kitchen overlooking the dining and gathering spaces, and a deck just off the back with peaceful sunset views of the community green space. Head upstairs to find the spacious owner's suite complete with a spa-inspired bath featuring dual shower heads, plus two additional bedrooms and a shared bath. The finished terrace level adds tremendous flexibility, a full bath, generous guest bedroom or home office, and direct garage access, making it ideal for guests, roommates, or a true work-from-home setup. Two-car rear-entry garage with EV charging. Wood stairs. Pot filler. End unit with extra windows and natural light. Dog park and sidewalk-lined community. Minutes to Old Town Roswell's restaurants and boutiques, GA-400, and the charm of Alpharetta. This is not just a townhome. It is the home you would build yourself, if you had the time, the taste, and the trades to do it right. Someone already did. Now it is yours.

Overview

Open House
3/15/2026 1:00PM - 3:00PM EDT
Property Status
For Sale
Lot Size
2,221.56 Sq.Ft.
MLS ID
7725902
Property Type
Townhouse
Year Built
2021

Features & Amenities

Total Area
2,414 Sq.Ft.
Neighborhood
Roswell
Architecture Styles
Townhouse, Traditional
Water Frontage
None
View Description
Other
Stories
3
Garage Spaces
2.0
Water Source
Public
Utilites
Cable Available, Electricity Available, Natural Gas Available, Phone Available, Sewer Available, Underground Utilities, Water Available
Pool
None
Roof
Composition, Shingle
Lot Features
Corner Lot
Parking
Drive Under Main Level, Garage, Garage Door Opener, Garage Faces Rear, Level Driveway, Electric Vehicle Charging Station(s)
Heat Type
Central, Forced Air, Natural Gas, Zoned
Air Conditioning
Ceiling Fan(s), Central Air, Zoned
Laundry Room
In Hall, Upper Level
Fireplace
Factory Built, Family Room
Appliances
Dishwasher, Disposal, Electric Oven, ENERGY STAR Qualified Appliances, Gas Cooktop, Gas Water Heater, Microwave, Range Hood, Refrigerator, Self Cleaning Oven
Other Interior Features
Disappearing Attic Stairs, Double Vanity, High Ceilings 9 ft Lower, High Ceilings 9 ft Main, High Ceilings 9 ft Upper, Low Flow Plumbing Fixtures, Smart Home, Tray Ceiling(s), Walk-In Closet(s)
Sewer
Public Sewer
Substructure
Slab
Disability Features
None
Security Features
Carbon Monoxide Detector(s), Security System Owned, Smoke Detector(s)
Green Feature
None
Other Exterior Features
Other
Elementary School
Mimosa
Middle School
Elkins Pointe
High School
Roswell
Sales Price
$600,000
Real Estate Tax
$5,473/yr
HOA
$360/mo

Downloads

7725902

Schedule a Tour

I would love to help you see this beautiful home! As a full-service real estate agent, I can help you tour. Please submit an offer, and answer questions about the buying process.

Thank you

for your interest in 3001 Park Avenue, Roswell, GA 30076

7725902
Navigate
 A charming light yellow house with a dark gray roof

Explore Roswell

read more

Mortgage Calculator

Estimate your monthly mortgage payment, including the principal and interest, property taxes, and HOA. Adjust the values to generate a more accurate rate.
$0,000 Your Payment 20 15 65
$0,000 Your Payment

I'm Interested In

7725902

or

Current Listings

Explore my sold & active properties below or contact me to schedule a private showing.

  • 2650 ROSWELL Road For Sale

    $2,050,000

    2650 ROSWELL Road, Marietta, GA 30062

    • 6 Beds
    • 5 Baths
    • 4,651 Sq.Ft.
  • 4125 Boles Creek Drive Coming Soon

    $710,000

    4125 Boles Creek Drive, Duluth, GA 30096

    • 5 Beds
    • 4 Baths
    • 5,470 Sq.Ft.
  • 3613 GREYSTONE Circle For Sale

    $695,000

    3613 GREYSTONE Circle, Chamblee, GA 30341

    • 4 Beds
    • 3 Baths
    • 3,238 Sq.Ft.
  • 2910 Ivey Ridge Lane Sold

    $650,000

    2910 Ivey Ridge Lane, Roswell, GA 30076

    • 3 Beds
    • 3 Baths
    • 2,074 Sq.Ft.
  • 4983 Odins Way Sold

    $631,000

    4983 Odins Way, Marietta, GA 30068

    • 4 Beds
    • 3 Baths
    • 2,874 Sq.Ft.
  • 2122 PEMBROKE Drive Sold

    $625,000

    2122 PEMBROKE Drive, Brookhaven, GA 30319

    • 3 Beds
    • 4 Baths
    • 2,250 Sq.Ft.
  • 95 River Watch Drive Sold

    $625,000

    95 River Watch Drive, Covington, GA 30014

    • 5 Beds
    • 4 Baths
    • 3,827 Sq.Ft.
  • 7725902 For Sale

    $600,000

    3001 Park Avenue, Roswell, GA 30076

    • 4 Beds
    • 4 Baths
    • 2,414 Sq.Ft.
  • 3531 EVANS RIDGE Drive Sold

    $590,000

    3531 EVANS RIDGE Drive, Atlanta, GA 30341

    • 4 Beds
    • 3 Baths
    • 2,587 Sq.Ft.
  • 4180 Oak Ferry Drive NE Sold

    $458,000

    4180 Oak Ferry Drive NE, Kennesaw, GA 30144

    • 3 Beds
    • 2 Baths
  • 3109 Dogwood Drive Sold

    $371,000

    3109 Dogwood Drive, Atlanta, GA 30354

    • 3 Beds
    • 3 Baths
    • 1,911 Sq.Ft.
  • 1204 HIGHLAND BLUFF Drive SE Sold

    $299,900

    1204 HIGHLAND BLUFF Drive SE, Atlanta, GA 30339

    • 2 Beds
    • 2 Baths
    • 1,462 Sq.Ft.
  • 3674 Linwood Way Sold

    $280,000

    3674 Linwood Way, Snellville, GA 30039

    • 3 Beds
    • 3 Baths
    • 2,424 Sq.Ft.
  • 3301 Henderson Mill Road Unit D6 Sold

    $183,500

    3301 Henderson Mill Road Unit D6, Chamblee, GA 30341

    • 2 Beds
    • 2 Baths
    • 1,230 Sq.Ft.
View All Properties

Follow Us On Instagram